Omakotitalopiha
Kerava 2022
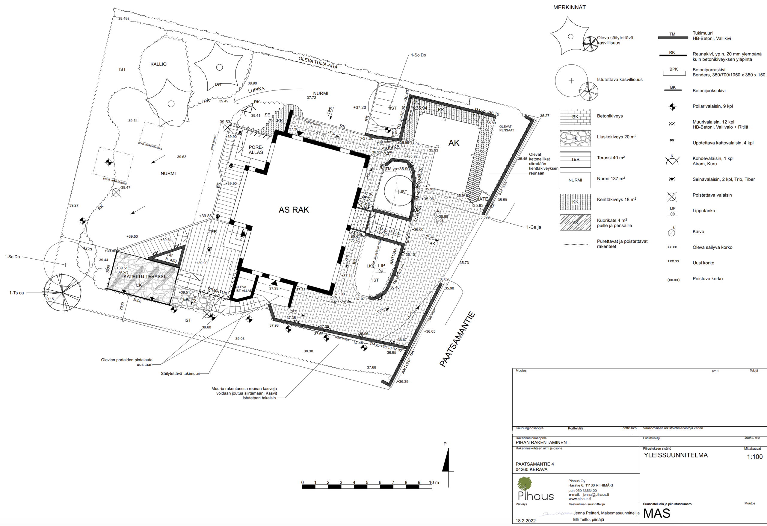
Keravalaisen omakotitalon pihan suunnittelu aloitettiin syksyllä 2021 ja rakentaminen toteutettiin osissa 2022 syksystä alkaen.
Projektin kuvaus
Keravalla sijaitsevan omakotitalon piha kaipasi saneerausta, kun etupihan muurit olivat alkaneet kallistua. Pihalle oli samalla muitakin muutostoiveita, joten oli ajankohtaista teettää koko pihan käsittävä pihasuunnitelma.
Takapihalle toivottiin uutta terassia ja tilaa oleskeluun. Uuden terassin yhteyteen tehtiin istutusaltaita, asennettiin poreallas ja rakennettiin lasitettu kesähuone. Kesähuoneeseen sekä takapihan kulkureitille tehtiin liuskekiveykset kovitesaumalla.
Etupihan maapaineen takia kallistuneet muurit purettiin ja vanhat kivet käytettiin uudelleen anturan päälle tehdyssä raudoitetussa muurissa. Muureihin asennettiin muurivalaisimet. Muurin takana maanpinta muotoiltiin uudestaan, niin että muurin korkeutta saatiin laskettua ajo-/kulkuväylälle matalemmaksi. Etupihalla ajopihan kiveys ladottiin uudelleen.
Muurin taakse rinteeseen istutettiin uudet istutukset, joissa käytettiin mm. peittopensaita, havuja ja koristeheiniä tuomaan näyttävyyttä jokaiseen vuodenaikaan. Yläpihan varjoisille alueille istutettiin mm. sormivaleangervoa sekä kuunliljaa ja valoisimmille alueille monilajiset perenna- ja pensasistutukset.
Kohteen tiedot
Keravalla sijaitsevan omakotitalon piha
Valmistumisvuosi
2022
Erityistä
Kesähuone
Suunnittelu
Pihaus Oy
Jenna Pelttari & Elli Teitto
Maa- ja puurakentaminen
KOMACON Oy
Viher- ja kivirakentaminen
Pihaus Oy
Nostotyöt
Timo Alastalo
tehdäänkö seuraavaksi
sinun pihasi?
















