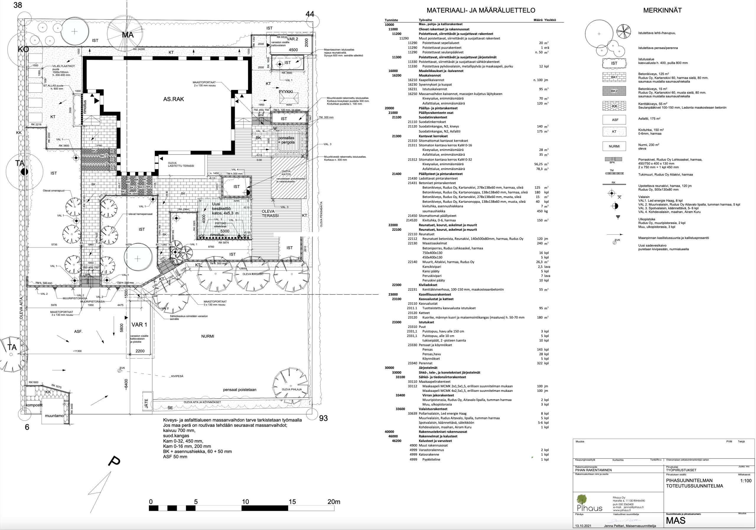
Janakkalaisen omakotitalopihan suunnittelu aloitettiin keväällä 2021 lumien sulattua. Pihan rakentaminen toteutettiin vaiheittain 2021-2023.
Omakotitalon uudet asukkaat halusivat päivittää pihan ilmettä. Olevat puiset reunalauta- ja muurirakenteet olivat osittain lahonneet. Niiden tilalle suunniteltiin uudet kestävämmät rakenteet hyödyntäen pihan olevia linjoja. Muurit tehtiin Ruduksen Aitakivi-muurikivellä, jonka keskeltä tehtiin kaksi kulkureittiä betoniportaita pitkin. Muureihin asennettiin upotettavat muurivalaisimet sekä pistorasiat.
Pihan kulkureiteille ladottiin betonikiveykset Ruduksen Kartanokivellä, joihin tehtiin vaihtelevuutta eri värisillä betonikivillä. Kulkureittien varrelle asennettiin uusia valaisimia.
Osa olevista kasveista säilytettiin ennallaan ja uudet istutukset asiakas istutti itse istutussuunnitelman mukaisesti.
Pihaan rakennettiin uusi varasto tontin kulmalle vanhan huonokuntoisen tilalle.
Janakkalassa sijaitsevan omakotitalon piha
Valmistumisvuosi
2023
Erityistä
Linjakkaat muurit ja kiveykset
Pääsuunnittelu
Pihaus Oy
Jenna Pelttari
Rakennussuunnittelu
Pihaus Oy, Jenna Pelttari
Uudenkylän piharakentajat Oy
Maarakentaminen
Tmi Konepalvelu Harri Heikkinen
Viher- ja kivirakentaminen
Pihaus Oy
Sähkötyöt
MT-Electric Oy
tehdäänkö seuraavaksi
sinun pihasi?
Parhaan käyttökokemuksen tarjoamiseksi käytämme teknologioita, kuten evästeitä, laitetietojen tallentamiseen ja/tai käyttöön. Näiden teknologioiden hyväksyminen mahdollistaa meille tietojen, kuten selauskäyttäytymisen tai yksilöllisten tunnisteiden, käsittelyn tällä sivustolla. Suostumuksen epääminen tai peruuttaminen voi vaikuttaa haitallisesti tiettyihin ominaisuuksiin ja toimintoihin.